Projects
Workshops
Scenography
Graphics
Costs
FOSCON
CV
Thomas Underhaug Fosseli
Projects
Workshops
Scenography
Graphics
Costs
FOSCON
CV
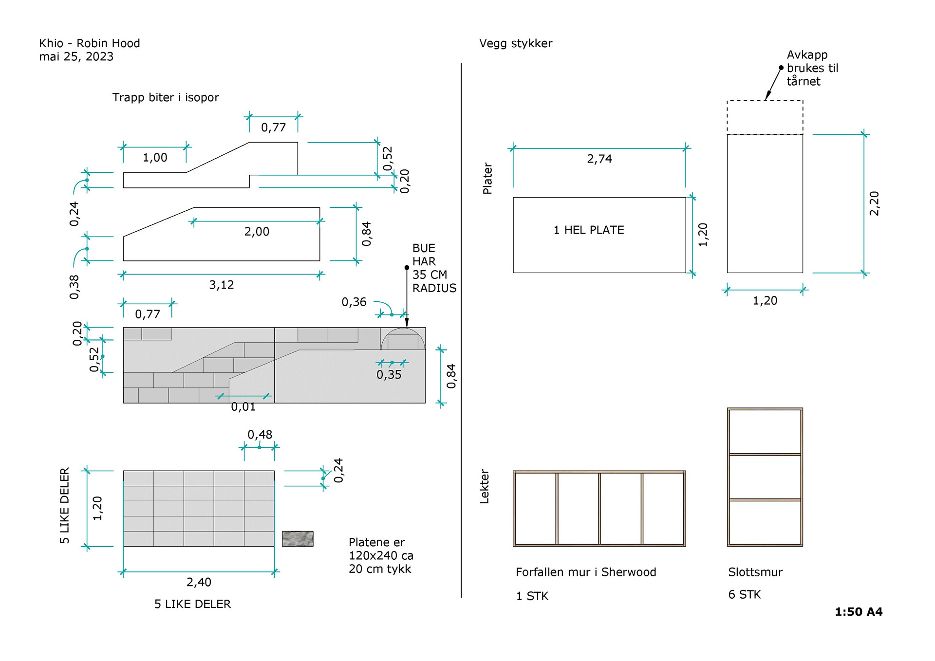
Robin Hood - Khio summer theater
360 View
↑
Back to Top